Living area
About 146 m²
Contents
About 514 m³
Construction year
Built in 2009
Number of rooms
4 rooms (3 bedrooms)

Brink 32

9411 KR, Beilen (Drenthe)

Stap binnen en laat u verrassen door dit bijzonder royale PENTHOUSE in het appartementencomplex ‘Markant’. Dankzij de grote raampartijen in de erkers geniet u van een prachtig, vrij uitzicht over de oude havenkolk van Beilen. Het hoge plafond in de woonkamer versterkt het gevoel van ruimte. Met een woonoppervlak van circa 146 m² beschikt het appartement over drie slaapkamers, een badkamer, een woonkamer en een keuken met eetgedeelte. Een comfortabel en ruim opgezet appartement waarin u niets hoeft in te leveren op wooncomfort.

De ligging is ideaal: het gezellige centrum van Beilen, met een divers winkelaanbod, ligt op loopafstand, de wekelijkse markt is dichtbij en ook diverse sportfaciliteiten zijn om de hoek. Daarnaast bereikt u binnen enkele minuten fietsen het Terhorsterzand en het prachtige Nationaal Park Dwingelderveld.

Het fraai vormgegeven complex ‘Markant’ is in 2009 gebouwd met hoogwaardige materialen en kent een uitstekend afwerkingsniveau. Het gebouw is ruim opgezet en beschikt over een afgesloten entree/hal met camerabewaking en video-intercom. Op het afgesloten parkeerterrein beschikt u over een eigen parkeerplaats met carport en een fietsenberging. Verder beschikt het complex uiteraard over een lift. Het geheel is zeer goed onderhouden en er is een actieve, gezonde Vereniging van Eigenaren (VvE).

Woonlaag:
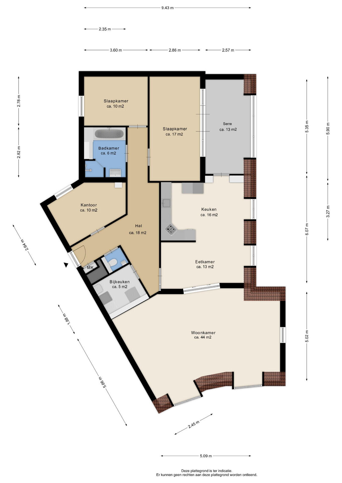
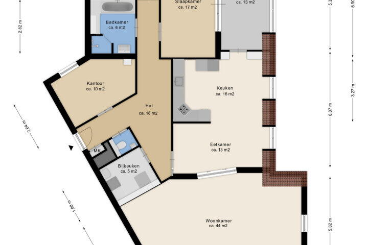
De entree van het appartement leidt naar een centrale hal. Vanuit hier bereikt u het woongedeelte, bestaande uit een halfopen keuken met eetkamer en een royale woonkamer aan de voorzijde (samen circa 73 m²). De woonkamer en eetkamer zijn van elkaar gescheiden met en-suite deuren. De keuken is uitgerust met een inductiekookplaat, afzuigkap, vaatwasser, combi-oven/magnetron en veel bergruimte. Vanuit de keuken heeft u toegang tot het inpandige, op het zuiden gelegen balkon. Dankzij de glazen schuifwand kunt u hier ook in het voor- en naseizoen ook comfortabel zitten.

Verder geeft de hal toegang tot het toilet, de meterkast, drie slaapkamers (ca. 17 m², ca. 10 m² en ca. 10 m²), de badkamer en een bijkeuken/berging. De badkamer (ca. 6 m²) is uitgerust met een douche, wastafelmeubel, tweede toilet en een whirlpool-ligbad.

Op de begane grond bevindt zich een eigen, inpandige berging met stroomaansluiting voor het opladen van een elektrische fiets. Het afgesloten parkeerterrein is bereikbaar via een op afstand bedienbare overheaddeur. Bij het appartement hoort een eigen parkeerplaats met carport.

VvE:
De maandelijkse bijdrage aan de VvE bedraagt € 390,- per maand.

Bijzonderheden en sterke punten:
- Licht en ruim appartement met een op het zuiden gelegen inpandig balkon;
- Circa 146 m² woonoppervlak, met een royale leefruimte en een stijlvolle woonkamer met hoge plafonds;
- Voorzien van drie ruime slaapkamers en veel praktische bergruimte;
- Goed functionerende, actieve en financieel gezonde VvE;
- Ruim opgezet appartement in een kleinschalig complex met vrij uitzicht over de Markt en de Haven van Beilen;
- Prachtig gelegen in het centrum van Beilen, nabij alle voorzieningen.

Floor plans

Transfer

Asking price
€ 499,000 kk
Status
Sold
Acceptance
In consultation
Contribution VvE
€ 390 p/m

Construction

Object type
Penthouse apartment
Type of construction
Existing construction
Construction year
2009
Type roof
Composite roof covered with bituminous roofing

Area and content

Living area
146 m²
Contents
514 m³
Other indoor space
8 m²
External storage space
7 m²
Building-related outdoor area
13 m²

Classification

Number of rooms
4 rooms (3 bedrooms)
Number of bathrooms
1 bathroom
Bathroom facilities
Bathtub, toilet, shower, vanity
Number of floors
1 dwelling level
Provisions
Mechanische ventilatie, tv-kabel, buitenzonwering, lift, airconditioning, schuifpui, glasvezel kabel

Energy

Energy label
A
Energy label registration
09-10-2020
Isolation
Roof insulation, wall insulation, floor insulation, double glazing, fully insulated
Heating
CV boiler
Hot water
CV boiler
Boiler
Intergas combikettle fired with gas from 2024 (ownership)

Outdoor space

Location
Quiet road, in centre, free view
Balcony / roof terrace
Roof terrace
Garden
No garden

Mine space

Shed / storage
Ingress
Provisions
Equipped with electricity

Garage

Type garage
Carport

Parking facility

Type of parking facility
On own grounds, on closed grounds

VvE check list

Company Registration at KvK
Yes
Annual meeting
Yes
Periodic contribution
Ja, € 390 p/m
Reserve fund present
Yes
Maintenance plan
Yes
Saddle insurance
Yes

Energy consumption in Beilen

Energy label this property

Energielabel A

Energy label publication: 09-10-2020

Annual electricity consumption

1890 kWh

(Average apartment in Beilen)

Annual gas consumption

780 m³

(Average apartment in Beilen)

* Figures are derived from CBS and are intended as an indication and may differ for this property

Mortgage costs indicator

Own contribution:
Savings / excess value

Interest:
Lowest 10-year interest rate

Lowest 10-year interest rate

2,78% - Centraal Beheer - NHG


3,04% - Centraal Beheer - 80%

Lowest 20-year interest rate

3,29% - Centraal Beheer - NHG


3,52% - Centraal Beheer - 80%

Lowest 30-year interest rate

3,41% - Centraal Beheer - NHG


3,7% - Argenta - 80%


Mortgage:

Gross monthly expenses: € 0 p/m

Net monthly expenses: € 0 p/m

How do we calculate this?

The interest rate is based on the lowest 10-year fixed rate for a single mortgage part. The stated rate (3.04% zonder NHG) was verified on 27-04-2026. This calculation is based on an annuity mortgage that is fully repaid, with monthly payments remaining the same throughout the entire term. The actual interest rate and net monthly costs may vary depending on your personal situation and the mortgage provider. Consult a financial advisor for an accurate calculation and advice. No rights can be derived from this calculation; it is for indicative purposes only.

Documentation

Cadastral map

Living environment

WOZ valuation report

BAG extract

Visit our website

To make an offer

Download everything

Viewing solar limits

On the map

Residents of Beilen

Statistics for postal code area 9411

Total number of inhabitants
8420 residents
Men
49%
Women
51%

Residents of Beilen

Statistics for postal code area 9411

until 15 years
13%
15 to 25 years
11%
25 to 35 years
19%
45 to 65 years
29%
65 and older
28%

Households in Beilen

Statistics for postal code area 9411

Single without children
37%
Multiple persons without children
33%
Households without children
70%

Households in Beilen

Statistics for postal code area 9411

Households with one child
7%
Households with multiple children
23%
Households with children
30%

Homes in Beilen

Statistics for postal code area 9411

Housing for 1945
15%
Houses between 1945 and 1965
15%
Houses between 1965 and 1975
23%
Houses between 1975 and 1985
14%
Houses between 1985 and 1995
18%

Homes in Beilen

Statistics for postal code area 9411

Homes between 1995 and 2005
6%
Homes between 2005 and 2015
6%
Homes after 2015
3%
Rented apartments
40%
Purchase properties
60%

Other income Beilen

Statistics for postal code area 9411

Average WOZ value
€ 205.000,-
People under 65 with disability benefits
9%

Other income Beilen

Statistics for postal code area 9411

Addresses per square kilometer
777
"Urbanity (scale 1 to 5)"
40%
Postcode kaart 9411 Gemeente kaart midden-drenthe

Groenhout Makelaars

If you have questions or would like to schedule a viewing, you can use the form on the right. You will then be contacted shortly thereafter.

The real estate agent in Overijssel

At Groenhout Makelaars Midden-Drenthe, we are ready to support you in selling your current home or buying your dream house. Our services are not limited to Midden-Drenthe; we are also active in surrounding municipalities. We attach great importance to flexibility, so appointments are possible in the evening and on Saturdays. Thanks to his background in the financial sector, Richard has extensive knowledge of finance and is naturally up-to-date with all market developments. As creative real estate agents, we strive to achieve set goals in original ways. We are passionate and driven in everything we do, and we know the real estate industry inside out. Our approach goes beyond standard office hours and includes pure entrepreneurship. We focus not only on business aspects but also on social elements. We are alert to new trends and incorporate them into our working method. Our expertise guarantees your comfort.

It is our passion and strength to tackle challenges and thus achieve optimal service delivery, from start to finish and even beyond! Take a look at our reviews; perhaps this will invite you for a no-obligation chat?

The real estate agent in Overijssel
Reviews Groenhout Makelaars

Brink 32, Beilen

€ 499,000 kk - Sold

Helaas, deze woning is verkocht!

Net te laat, deze woning is al verkocht. Laat een zoekopdracht bij ons achter zodat wij u direct kunnen helpen wanneer er nieuw aanbod beschikbaar komt.